_nr 2025-007

Wyniki konkursu na koncepcję Szkoły Podstawowej z zapleczem sportowym przy ul. Łokciowej w Dzielnicy Wilanów w Warszawie

Informacje

Lokalizacja: Warszawa
Województwo: Mazowieckie
Organizator: Miasto Stołeczne Warszawa Dzielnica Wilanów
Współorganizator: SARP Warszawa
Tryb: Zamówienie z wolnej ręki
Rodzaj: Realizacyjny
Typ: Dwuetapowy
Data ogłoszenia konkursu: 18.03.2025
Data rejestracji uczestników: 11.04.2025
Data składania prac: 16.05.2025
Data ogłoszenia wyników: 02.09.2025

Sędziowie

_Przewodniczący:
  • Szczepan Wroński, OW SARP
_Sędzia referent:
  • Aleksandra Zubelewicz-Lada, OW SARP
_Członkowie sądu:
  • Magdalena Maria Staniszkis, OW SARP
  • Patrycja Harasińska-Sikorzyńska, Wydział Architektury i Budownictwa dla Dzielnicy Wilanów
  • Joanna Mazurkiewicz-Sierzputowska, Wydział Architektury i Budownictwa dla Dzielnicy Wilanów
  • Dorota Ostrowska, Wydział Infrastruktury dla Dzielnicy Wilanów
  • Joanna Strzelecka, Wydział Ochrony Środowiska dla Dzielnicy Wilanów
  • Aneta Mazur, Wydział Oświaty i Wychowania dla Dzielnicy Wilanów
  • Maciej Przychodzień, Wydział Administracyjno-Gospodarczy dla Dzielnicy Wilanów
  • Katarzyna Herman, Biuro Architektury i Planowania Przestrzennego
  • Maria Zielińska, Biuro Architektury i Planowania Przestrzennego
_Sekretarz konkursu:
  • Rafał Mroczkowski, OW SARP

Opis konkursu

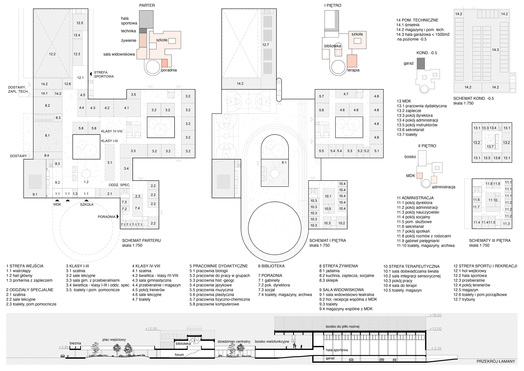
Przedmiotem konkursu zorganizowanego przez Dzielnicę Wilanów m.st. Warszawy we współpracy z Oddziałem Warszawskim SARP była koncepcja budynku Szkoły Podstawowej zlokalizowanej przy ul. Łokciowej w Warszawie. Należało zaprojektować kompleks oświatowy z dodatkowymi funkcjami jak Młodzieżowy Dom Kultury i poradnia psychologiczno-pedagogiczna, a także zapleczem sportowym, niezbędną infrastrukturą i zagospodarowaniem terenu. W zakresie projektu Szkoły należało wydzielić następujące strefy: 

  • wejściową holu głównego;
  • 3 osobne strefy nauczania - dla dzieci uczęszczających do oddziałów specjalnych, ogólnodostępnych klas I-III oraz oddziałów ogólnodostępnych klas IV-VIII;
  • strefę pracowni dydaktycznych i sal do pracy w grupach;
  • biblioteki z czytelnią multimedialną;
  • świetlic i rekreacji;
  • żywienia; 
  • sali widowiskowo-teatralnej;
  • terapeutyczną;
  • administracyjną.

Strefa sportu i rekreacji miała uwzględniać halę sportową z możliwością odbywania imprez sportowo-kulturalno-oświatowych i spotkań grupowych oraz dwie sale gimnastyczne. Rozwiązania dla obiektów pełniących funkcje dodatkowe miały stawarzać powiązanie funkcjonalnie z kompleksem oświatowym, ale również umożliwiać samodzielne funkcjonowanie np. poza godzinami pracy szkoły. Stąd MDK i poradnię psychologiczno-pedagogiczną należało wyposażyć w osobne wejścia.
Organizator oczekiwał od Uczestników konkursu koncepcji kompleksu, który będzie zapraszający i pobudzający wyobraźnię dzieci oraz uwzględniający rozwiązania proekologiczne. [AK]

Do II etapu konkursu zostało zaproszonych 8 Uczestników i wszyscy złożyli opracowania. 

Planowany koszt realizacji inwestycji - 97 000 000 zł netto
Maksymalny planowany koszt wynagrodzenia projektanta nie powinien przekroczyć kwoty stanowiącej 5,7 % planowanego łącznego kosztu realizacji inwestycji netto

Materiały zostały opublikowane dzięki uprzejmości i za zgodą Organizatora Konkursu. 

Wyniki konkursu

Zaloguj się, aby mieć pełny dostęp do galerii.
Rejestracja jest darmowa i pomaga nam
udostępniać materiały bezpłatnie.

Zaloguj się, aby mieć pełny dostęp do galerii.
Rejestracja jest darmowa i pomaga nam
udostępniać materiały bezpłatnie.

Zaloguj się, aby mieć pełny dostęp do galerii.
Rejestracja jest darmowa i pomaga nam
udostępniać materiały bezpłatnie.

Zaloguj się, aby mieć pełny dostęp do galerii.
Rejestracja jest darmowa i pomaga nam
udostępniać materiały bezpłatnie.

Zaloguj się, aby mieć pełny dostęp do galerii.
Rejestracja jest darmowa i pomaga nam
udostępniać materiały bezpłatnie.

Zaloguj się, aby mieć pełny dostęp do galerii.
Rejestracja jest darmowa i pomaga nam
udostępniać materiały bezpłatnie.

Zaloguj się, aby mieć pełny dostęp do galerii.
Rejestracja jest darmowa i pomaga nam
udostępniać materiały bezpłatnie.

Zaloguj się, aby mieć pełny dostęp do galerii.
Rejestracja jest darmowa i pomaga nam
udostępniać materiały bezpłatnie.

Zaloguj się, aby mieć pełny dostęp do galerii.
Rejestracja jest darmowa i pomaga nam
udostępniać materiały bezpłatnie.

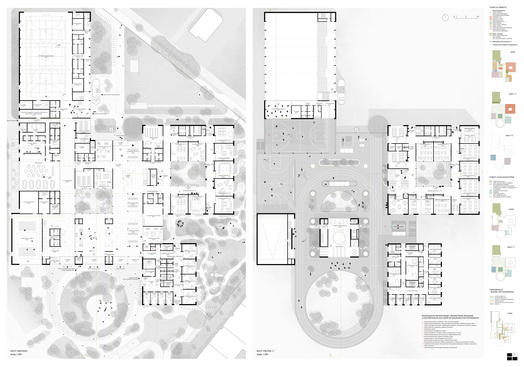
I nagroda 50 000 zł

Studio Widoki Łukasz Stępnik, Mak studio Łukasz Krzesiak, 2PM Piotr Musiałowski
instagram.com/studio.widoki

Autorzy: Łukasz Stępnik, Milena Trzcińska, Łukasz Krzesiak, Piotr Musiałowski, Dominika Bednarek, Łukasz Kowalski, Piotr Pachowski, Tomasz Bartkowiak, Krzysztof Demidziuk, Michał Lenczewski

Uzasadnienie wyboru pracy:
Praca w najlepszy sposób spełnia oczekiwania Zamawiającego pod względem rozwiązań urbanistycznych, zagospodarowania terenu, jak i funkcji oraz wyrazu architektonicznego obiektu. Atutem pracy jest bardzo czytelny układ brył i podział funkcji. Umożliwiono równorzędny dostęp do projektowanej szkoły zarówno od ulicy Sytej, jak i Łokciowej.

więcej
Zaloguj się, aby mieć pełny dostęp do galerii.
Rejestracja jest darmowa i pomaga nam
udostępniać materiały bezpłatnie.

Zaloguj się, aby mieć pełny dostęp do galerii.
Rejestracja jest darmowa i pomaga nam
udostępniać materiały bezpłatnie.

Zaloguj się, aby mieć pełny dostęp do galerii.
Rejestracja jest darmowa i pomaga nam
udostępniać materiały bezpłatnie.

Zaloguj się, aby mieć pełny dostęp do galerii.
Rejestracja jest darmowa i pomaga nam
udostępniać materiały bezpłatnie.

Zaloguj się, aby mieć pełny dostęp do galerii.
Rejestracja jest darmowa i pomaga nam
udostępniać materiały bezpłatnie.

Zaloguj się, aby mieć pełny dostęp do galerii.
Rejestracja jest darmowa i pomaga nam
udostępniać materiały bezpłatnie.

Zaloguj się, aby mieć pełny dostęp do galerii.
Rejestracja jest darmowa i pomaga nam
udostępniać materiały bezpłatnie.

Zaloguj się, aby mieć pełny dostęp do galerii.
Rejestracja jest darmowa i pomaga nam
udostępniać materiały bezpłatnie.

Zaloguj się, aby mieć pełny dostęp do galerii.
Rejestracja jest darmowa i pomaga nam
udostępniać materiały bezpłatnie.

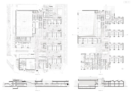
II nagroda 40 000 zł

WWAA
wwaa.pl

Autorzy: Natalia Paszkowska, Marcin Mostafa, Karol Krawczyk, Katarzyna Kłaczek, Katarzyna Buchholz, Yelizaveta Prystromava, Ryszard Rychlicki, Wiktor Kowalski, Jan Cieśla

Uzasadnienie wyboru pracy:
Praca wyróżnia się zaproponowanym połączeniem ulicy Sytej i Łokciowej, uzyskanym przez podział brył i zagospodarowanie terenu. Atutem tej pracy jest lokalizacja funkcji dostępnych dla wszystkich mieszkańców z „Nowego Placu Vogla” i „skweru aktywności”. Zapewniono dobre doświetlenie stref rekreacyjnych w części dydaktycznej.

Zaloguj się, aby mieć pełny dostęp do galerii.
Rejestracja jest darmowa i pomaga nam
udostępniać materiały bezpłatnie.

Zaloguj się, aby mieć pełny dostęp do galerii.
Rejestracja jest darmowa i pomaga nam
udostępniać materiały bezpłatnie.

Zaloguj się, aby mieć pełny dostęp do galerii.
Rejestracja jest darmowa i pomaga nam
udostępniać materiały bezpłatnie.

Zaloguj się, aby mieć pełny dostęp do galerii.
Rejestracja jest darmowa i pomaga nam
udostępniać materiały bezpłatnie.

Zaloguj się, aby mieć pełny dostęp do galerii.
Rejestracja jest darmowa i pomaga nam
udostępniać materiały bezpłatnie.

Zaloguj się, aby mieć pełny dostęp do galerii.
Rejestracja jest darmowa i pomaga nam
udostępniać materiały bezpłatnie.

Zaloguj się, aby mieć pełny dostęp do galerii.
Rejestracja jest darmowa i pomaga nam
udostępniać materiały bezpłatnie.

Zaloguj się, aby mieć pełny dostęp do galerii.
Rejestracja jest darmowa i pomaga nam
udostępniać materiały bezpłatnie.

Zaloguj się, aby mieć pełny dostęp do galerii.
Rejestracja jest darmowa i pomaga nam
udostępniać materiały bezpłatnie.

III nagroda 30 000 zł

Grupa 5 Architekci
grupa5.com.pl

Autorzy: Michał Leszczyński, Krzysztof Mycielski, Roman Dziedziejko, Rafał Zelent, Rafał Grzelewski, Mateusz Gawron, Barbara Szol, Milena Szczęsna, Jeremi Dziedziejko, Maciej Kolek, Paulina Cieśla, Justyna Dziedziejko, Magdalena Wnęk, Maria Grzejda

Uzasadnienie wyboru pracy:
Uwagę sądu konkursowego zwróciła wrażliwość kształtowania przestrzeni w oparciu o potrzeby dzieci oraz atrakcyjność terenu zielonego w środku założenia. Wątpliwość Sądu Konkursowego wzbudziła znaczna odległość (i dostępność) poradni i szkolnych pomieszczeń terapii od oddziałów nauczania specjalnego.

Zaloguj się, aby mieć pełny dostęp do galerii.
Rejestracja jest darmowa i pomaga nam
udostępniać materiały bezpłatnie.

Zaloguj się, aby mieć pełny dostęp do galerii.
Rejestracja jest darmowa i pomaga nam
udostępniać materiały bezpłatnie.

Zaloguj się, aby mieć pełny dostęp do galerii.
Rejestracja jest darmowa i pomaga nam
udostępniać materiały bezpłatnie.

Zaloguj się, aby mieć pełny dostęp do galerii.
Rejestracja jest darmowa i pomaga nam
udostępniać materiały bezpłatnie.

Zaloguj się, aby mieć pełny dostęp do galerii.
Rejestracja jest darmowa i pomaga nam
udostępniać materiały bezpłatnie.

Zaloguj się, aby mieć pełny dostęp do galerii.
Rejestracja jest darmowa i pomaga nam
udostępniać materiały bezpłatnie.

Zaloguj się, aby mieć pełny dostęp do galerii.
Rejestracja jest darmowa i pomaga nam
udostępniać materiały bezpłatnie.

Zaloguj się, aby mieć pełny dostęp do galerii.
Rejestracja jest darmowa i pomaga nam
udostępniać materiały bezpłatnie.

Zaloguj się, aby mieć pełny dostęp do galerii.
Rejestracja jest darmowa i pomaga nam
udostępniać materiały bezpłatnie.

Wyróżnienie 15 000 zł

MAMGUSTA Architekci
mamgusta.com

Autorzy: Sebastian Tabędzki, Łukasz Lautsch, Małgorzata Grzybowska, Adam Krupa, Mateusz Gortat

Uzasadnienie wyboru pracy:
Praca otrzymuje wyróżnienie ze względu na dobre rozwiązanie urbanistyczne - ukształtowanie strefy wejścia przed budynkiem, która w sposób płynny przekształca się w atrakcyjny hol wejściowy. O ile autorzy poświęcili dużo uwagi na rozwiązania urbanistyczne i budynkowe o tyle nie wykazali przekonujących rozwiązań dedykowanych uczniom. Wątpliwości budzi m.in. relatywnie duże oddalenie od wejścia zespołu szatni, niedoświetlenie rekreacji w skrzydłach szkolnych oraz odległość świetlic od wejścia (jedna z nich na kondygnacji 2.

Zaloguj się, aby mieć pełny dostęp do galerii.
Rejestracja jest darmowa i pomaga nam
udostępniać materiały bezpłatnie.

Zaloguj się, aby mieć pełny dostęp do galerii.
Rejestracja jest darmowa i pomaga nam
udostępniać materiały bezpłatnie.

Zaloguj się, aby mieć pełny dostęp do galerii.
Rejestracja jest darmowa i pomaga nam
udostępniać materiały bezpłatnie.

Zaloguj się, aby mieć pełny dostęp do galerii.
Rejestracja jest darmowa i pomaga nam
udostępniać materiały bezpłatnie.

Zaloguj się, aby mieć pełny dostęp do galerii.
Rejestracja jest darmowa i pomaga nam
udostępniać materiały bezpłatnie.

Zaloguj się, aby mieć pełny dostęp do galerii.
Rejestracja jest darmowa i pomaga nam
udostępniać materiały bezpłatnie.

Zaloguj się, aby mieć pełny dostęp do galerii.
Rejestracja jest darmowa i pomaga nam
udostępniać materiały bezpłatnie.

Zaloguj się, aby mieć pełny dostęp do galerii.
Rejestracja jest darmowa i pomaga nam
udostępniać materiały bezpłatnie.

Zaloguj się, aby mieć pełny dostęp do galerii.
Rejestracja jest darmowa i pomaga nam
udostępniać materiały bezpłatnie.

Wyróżnienie 15 000 zł

Pracownia Architektoniczna 1997, Gąska Wojcieszak Pracownia Architektoniczna
pa1997.pl, gwpa.pl

Autorzy: Krzysztof Frąckowiak, Rafał Hodyra, Aleksandra Kornecka, Magdalena Lelonkiewicz, Łukasz Gąska, Mirosław Wojcieszak, Kornel Kuzański, Katarzyna Woźniak, Teresa Bączkiewicz

Uzasadnienie wyboru pracy:
Zaproponowany został zasadniczo zwarty i efektywny układ komunikacyjny, przestrzenie rekreacyjne wewnątrz budynku są doświetlone. Dużym atutem pracy jest również rozwiązanie zewnętrznych przestrzeni wspólnych na tarasach. Wątpliwości sądu budzi relatywnie mało przestrzeni zielonej dla uczniów, w szczególności w wąskim dziedzińcu zrealizowanym od północy. Deklaracja stworzenia lokalnego centrum życia społecznego nie odzwierciedla się w rozwiązaniach projektowych np. wejście do MDK jest mało widoczne.

Zaloguj się, aby mieć pełny dostęp do galerii.
Rejestracja jest darmowa i pomaga nam
udostępniać materiały bezpłatnie.

Zaloguj się, aby mieć pełny dostęp do galerii.
Rejestracja jest darmowa i pomaga nam
udostępniać materiały bezpłatnie.

Zaloguj się, aby mieć pełny dostęp do galerii.
Rejestracja jest darmowa i pomaga nam
udostępniać materiały bezpłatnie.

Zaloguj się, aby mieć pełny dostęp do galerii.
Rejestracja jest darmowa i pomaga nam
udostępniać materiały bezpłatnie.

Zaloguj się, aby mieć pełny dostęp do galerii.
Rejestracja jest darmowa i pomaga nam
udostępniać materiały bezpłatnie.

Zaloguj się, aby mieć pełny dostęp do galerii.
Rejestracja jest darmowa i pomaga nam
udostępniać materiały bezpłatnie.

Zaloguj się, aby mieć pełny dostęp do galerii.
Rejestracja jest darmowa i pomaga nam
udostępniać materiały bezpłatnie.

Zaloguj się, aby mieć pełny dostęp do galerii.
Rejestracja jest darmowa i pomaga nam
udostępniać materiały bezpłatnie.

Zaloguj się, aby mieć pełny dostęp do galerii.
Rejestracja jest darmowa i pomaga nam
udostępniać materiały bezpłatnie.

Wyróżnienie 15 000 zł

JEMS Architekci
jems.pl

Autorzy: Tomasz Napieralski, Marcin Sadowski, Beata Momot, Sandra Namyślak, Mateusz Wojcieszek, Karolina Mrówka, Piotr Kliński, Piotr Pachowski, Bartłomiej Siekierski

Uzasadnienie wyboru pracy:
Budynek posiada bardzo dużo uroku różnorodnych przestrzeni wewnętrznych, które zostały docenione przez sąd konkursowy. Autorzy skupili się na wnętrzu, jednak bez wystarczającej uwagi dla przestrzeni zewnętrznych, w których uczniowie, szczególnie młodsze grupy wiekowe, spędzają dużo czasu. Proponowany budynek jest bardzo duży, co rodziło obawy o przyszłe koszty utrzymania obiektu. Wątpliwości budzi zasadność umieszczenia strefy MDK od strony ulicy Łokciowej.

Zaloguj się, aby mieć pełny dostęp do galerii.
Rejestracja jest darmowa i pomaga nam
udostępniać materiały bezpłatnie.

Zaloguj się, aby mieć pełny dostęp do galerii.
Rejestracja jest darmowa i pomaga nam
udostępniać materiały bezpłatnie.

Zaloguj się, aby mieć pełny dostęp do galerii.
Rejestracja jest darmowa i pomaga nam
udostępniać materiały bezpłatnie.

Zaloguj się, aby mieć pełny dostęp do galerii.
Rejestracja jest darmowa i pomaga nam
udostępniać materiały bezpłatnie.

Zaloguj się, aby mieć pełny dostęp do galerii.
Rejestracja jest darmowa i pomaga nam
udostępniać materiały bezpłatnie.

Zaloguj się, aby mieć pełny dostęp do galerii.
Rejestracja jest darmowa i pomaga nam
udostępniać materiały bezpłatnie.

Zaloguj się, aby mieć pełny dostęp do galerii.
Rejestracja jest darmowa i pomaga nam
udostępniać materiały bezpłatnie.

Zaloguj się, aby mieć pełny dostęp do galerii.
Rejestracja jest darmowa i pomaga nam
udostępniać materiały bezpłatnie.

Zaloguj się, aby mieć pełny dostęp do galerii.
Rejestracja jest darmowa i pomaga nam
udostępniać materiały bezpłatnie.

Wyróżnienie 15 000 zł

JSK Architekci
jskarchitekci.pl

Autorzy: Zbigniew Pszczulny, Mariusz Rutz, Kinga Batte, Julia Pałęga, Jakub Pieńkowski, Mikołaj Twardowski, Anna Pliszka

Uzasadnienie wyboru pracy:
Projekt w sposób wzorcowy rozwiązuje detale elementów zagospodarowania terenu i wyposażenia wnętrza. Należy docenić również szczególne zwrócenie uwagi na różne grupy uczniów ze specjalnymi potrzebami i zaprojektowanie rozwiązań pod te potrzeby. Mimo odczytania intencji autorów, w ocenie sądu konkursowego plac wejściowy pozostanie urbanistycznie wyizolowany i bez efektywnych powiązań z resztą tkanki miejskiej. Autorzy nie zaproponowali przekonującej przestrzeni zielonej, z której mogliby korzystać wszyscy uczniowie.

Zaloguj się, aby mieć pełny dostęp do galerii.
Rejestracja jest darmowa i pomaga nam
udostępniać materiały bezpłatnie.

Zaloguj się, aby mieć pełny dostęp do galerii.
Rejestracja jest darmowa i pomaga nam
udostępniać materiały bezpłatnie.

Zaloguj się, aby mieć pełny dostęp do galerii.
Rejestracja jest darmowa i pomaga nam
udostępniać materiały bezpłatnie.

Zaloguj się, aby mieć pełny dostęp do galerii.
Rejestracja jest darmowa i pomaga nam
udostępniać materiały bezpłatnie.

Zaloguj się, aby mieć pełny dostęp do galerii.
Rejestracja jest darmowa i pomaga nam
udostępniać materiały bezpłatnie.

Zaloguj się, aby mieć pełny dostęp do galerii.
Rejestracja jest darmowa i pomaga nam
udostępniać materiały bezpłatnie.

Zaloguj się, aby mieć pełny dostęp do galerii.
Rejestracja jest darmowa i pomaga nam
udostępniać materiały bezpłatnie.

Zaloguj się, aby mieć pełny dostęp do galerii.
Rejestracja jest darmowa i pomaga nam
udostępniać materiały bezpłatnie.

Zaloguj się, aby mieć pełny dostęp do galerii.
Rejestracja jest darmowa i pomaga nam
udostępniać materiały bezpłatnie.

Wyróżnienie 15 000 zł

Małgorzata Pirek – FLOWTEKTURA Pracownia Projektowa
flowtektura.pl

Autorzy: Małgorzata Pirek, Agnieszka Marciniak, Piotr Borzęcki, Małgorzata Świdrak, Paulina Soból-Hara, Anna Hejduk

Uzasadnienie wyboru pracy:
Zaletą pracy jest stworzenie atrakcyjnego wejścia od strony ulicy Łokciowej z półotwartym dziedzińcem zorganizowanym wokół istniejącego drzewa, które płynnie przechodzi w hol, do którego można wejść również od strony ulicy Sytej. Mankamentem pracy jest m.in. ukształtowanie amfiteatru utrudniającego dostęp od ulicy Sytej, oddalenie MDK od głównego wejścia na teren, ciasny układ korytarzowy w części dydaktycznej. Wątpliwości budzi prawidłowość podanego wskaźnika powierzchni biologicznie czynnej w zgodności z ustaleniem obowiązującego planu mpzp. Minusem pracy są rozwiązania komunikacyjnej, które nie sprzyjają bezpiecznemu dotarciu do szkoły przez dzieci.

platforma ARCHIKONKURS istnieje dzięki wsparciu

Forbo
Stowarzyszenie Producentów Cementu
Strona internetowa Archikonkurs wykorzystuje pliki „cookies”. Użytkownik może zmienić warunki korzystania z plików "cookies" poprzez zmianę ustawień przeglądarki. Szczegółowe informacje na temat przechowywania i wykorzystania plików "cookies" znajdują się w Polityce Prywatności