_nr 2025-009

Wyniki konkursu na koncepcję budowy obiektu Komendy Powiatowej Policji w Kole

Informacje

Lokalizacja: Koło
Województwo: Wielkopolskie
Organizator: Komenda Wojewódzka Policji w Poznaniu
Tryb: Zamówienie z wolnej ręki
Rodzaj: Realizacyjny
Typ: Jednoetapowy
Data ogłoszenia konkursu: 24.03.2025
Data rejestracji uczestników: 14.04.2025
Data ogłoszenia wyników: 22.08.2025

Sędziowie

_Przewodniczący:
  • Marcin Piotrowski
_Zastępca przewodniczącego:
  • Maciej Łukomski
_Członkowie sądu:
  • Robert Kropidłowski, Starosta Kolski
  • Krzysztof Witkowski, Burmistrz Miasta Koła
  • Jacek Brzęcki, Komendant Powiatowy Policji w Kole
  • Adam Witt
_Sekretarz konkursu:
  • Agnieszka Bieńkowska - Nowacka

Opis konkursu

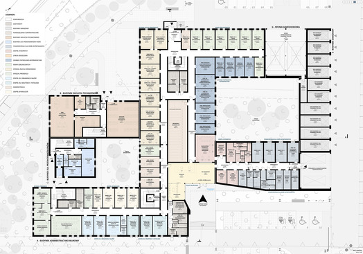
Przedmiotem konkursu zorganizowanego przez Komendę Wojewódzką Policji w Poznaniu było opracowanie koncepcji budowy obiektu Komendy Powiatowej Policji w Kole. Należało zaprojektować budynek administracyjno-biurowy o powierzchni użytkowej około 2 700 m2 i kubaturze około 12 000 m3. [AK]

Maksymalny planowany koszt realizacji inwestycji - 61 000 000 zł brutto
Maksymalny planowany koszt wynagrodzenia projektanta - 940 000 zł brutto

Materiały zostały opublikowane dzięki uprzejmości i za zgodą Uczestników Konkursu. 

Wyniki konkursu

Zaloguj się, aby mieć pełny dostęp do galerii.
Rejestracja jest darmowa i pomaga nam
udostępniać materiały bezpłatnie.

Zaloguj się, aby mieć pełny dostęp do galerii.
Rejestracja jest darmowa i pomaga nam
udostępniać materiały bezpłatnie.

Zaloguj się, aby mieć pełny dostęp do galerii.
Rejestracja jest darmowa i pomaga nam
udostępniać materiały bezpłatnie.

Zaloguj się, aby mieć pełny dostęp do galerii.
Rejestracja jest darmowa i pomaga nam
udostępniać materiały bezpłatnie.

Zaloguj się, aby mieć pełny dostęp do galerii.
Rejestracja jest darmowa i pomaga nam
udostępniać materiały bezpłatnie.

Zaloguj się, aby mieć pełny dostęp do galerii.
Rejestracja jest darmowa i pomaga nam
udostępniać materiały bezpłatnie.

Zaloguj się, aby mieć pełny dostęp do galerii.
Rejestracja jest darmowa i pomaga nam
udostępniać materiały bezpłatnie.

Zaloguj się, aby mieć pełny dostęp do galerii.
Rejestracja jest darmowa i pomaga nam
udostępniać materiały bezpłatnie.

Zaloguj się, aby mieć pełny dostęp do galerii.
Rejestracja jest darmowa i pomaga nam
udostępniać materiały bezpłatnie.

Zaloguj się, aby mieć pełny dostęp do galerii.
Rejestracja jest darmowa i pomaga nam
udostępniać materiały bezpłatnie.

Zaloguj się, aby mieć pełny dostęp do galerii.
Rejestracja jest darmowa i pomaga nam
udostępniać materiały bezpłatnie.

I nagroda 15 000 zł

PL+ sp. z o.o.
plplus.pl

Autorzy: Paweł Litwinowicz, Miranda Turostowska, Anna Darmosz, Magda Kryszkiewicz

Uzasadnienie wyboru pracy:
Za bardzo czytelny układ przestrzenny zarówno na poziomie urbanistycznym jaki i architektonicznym. Autor/autorzy uwzględnili w pracy warunki geologiczne, proponując odpowiednie rozwiązania i prostą konstrukcje. Poprawnie i w odpowiedniej ilości dla funkcji obiektu i możliwości jego użytkownika zaproponowali rozwiązania proekologiczne. W ocenie Sądu podział przestrzeni zewnętrznej to szczególnie ważny element wybranej pracy, który zasługiwał na jego podkreślenie i tak wysoką ocenę. Układ funkcjonalny odpowiada na postawione wytyczne programowe, co więcej umożliwia prostą w realizacji reorganizację funkcjonalną, która podporządkuje się innym potrzebom użytkownika w zmieniających się realiach zewnętrznych i czasie. Propozycja rozwiązania boksów dla psów tylko utwierdziła Sąd o słusznym wyborze pracy do dalszej realizacji.

Zaloguj się, aby mieć pełny dostęp do galerii.
Rejestracja jest darmowa i pomaga nam
udostępniać materiały bezpłatnie.

Zaloguj się, aby mieć pełny dostęp do galerii.
Rejestracja jest darmowa i pomaga nam
udostępniać materiały bezpłatnie.

Zaloguj się, aby mieć pełny dostęp do galerii.
Rejestracja jest darmowa i pomaga nam
udostępniać materiały bezpłatnie.

Zaloguj się, aby mieć pełny dostęp do galerii.
Rejestracja jest darmowa i pomaga nam
udostępniać materiały bezpłatnie.

Zaloguj się, aby mieć pełny dostęp do galerii.
Rejestracja jest darmowa i pomaga nam
udostępniać materiały bezpłatnie.

Zaloguj się, aby mieć pełny dostęp do galerii.
Rejestracja jest darmowa i pomaga nam
udostępniać materiały bezpłatnie.

Zaloguj się, aby mieć pełny dostęp do galerii.
Rejestracja jest darmowa i pomaga nam
udostępniać materiały bezpłatnie.

Zaloguj się, aby mieć pełny dostęp do galerii.
Rejestracja jest darmowa i pomaga nam
udostępniać materiały bezpłatnie.

Zaloguj się, aby mieć pełny dostęp do galerii.
Rejestracja jest darmowa i pomaga nam
udostępniać materiały bezpłatnie.

II nagroda 15 000 zł

BCM Architekci Sp. z o.o.
bcmarchitekci.pl

Autorzy: Zuzanna Bińczyk, Jacek Miller, Izabela Siemianowska, Martyna Siwek, Dawid Lichosyt, Patrycja Wszoła, Dominika Bezulska.

Uzasadnienie wyboru pracy:
Za znakomite walory estetyczne przedstawionej koncepcji. Jej poprawny układ funkcjonalno-przestrzenny zasługuje w pełni na wyróżnienie. I w tej pracy autor/autorzy uwzględnili warunki geologiczne, proponując odpowiednie rozwiązania. Niestety ilość rozwiązań proekologicznych i konieczność bieżącego użytkowania wzbudza obawy o możliwości finansowe ich utrzymania. Niemniej jednak sposób w jaki zostało to pokazane graficznie wzbudziło wiele dyskusji i na pewno zwróciło uwagę Sądu. Podobne uwagi dotyczą zaproponowanych atriów i tarasów, które bardzo przypadły do gustu Sądowi jednak znowu ich eksploatacja może przysporzyć użytkownikowi sporo kosztów.

więcej

platforma ARCHIKONKURS istnieje dzięki wsparciu

Forbo
Stowarzyszenie Producentów Cementu
Strona internetowa Archikonkurs wykorzystuje pliki „cookies”. Użytkownik może zmienić warunki korzystania z plików "cookies" poprzez zmianę ustawień przeglądarki. Szczegółowe informacje na temat przechowywania i wykorzystania plików "cookies" znajdują się w Polityce Prywatności