_nr 2025-015

Wyniki konkursu na projekt Domu Studenckiego Jowita w Poznaniu

Informacje

Lokalizacja: Poznań
Województwo: Wielkopolskie
Organizator: Uniwersytet im. Adama Mickiewicza w Poznaniu
Współorganizator: SARP Oddział Poznań
Tryb: Zamówienie z wolnej ręki
Rodzaj: Realizacyjny
Typ: Dwuetapowy
Data ogłoszenia konkursu: 09.04.2025
Data rejestracji uczestników: 30.04.2025
Data składania prac: 17.06.2025
Data ogłoszenia wyników: 29.10.2025

Sędziowie

_Przewodniczący:
  • Piotr Marciniak, SARP Oddział Poznań
_Sędzia referent:
  • Joanna Kapturczak, SARP Oddział Poznań
_Członkowie sądu:
  • Joanna Wójcik, UAM
  • Natalia Paszkowska, OW SARP
  • Krzysztof Frąckowiak, SARP Oddział Poznań
  • Tadeusz Wallas, UAM
  • Marcin Wysocki, UAM
  • Marek Sobczak, UAM
  • Piotr Sobczak, UM Poznań
  • Joanna Bielawska-Pałczyńska, MKZ Poznań
_Sekretarz konkursu:
  • Mikołaj Stępień

Opis konkursu

Przedmiotem konkursu zorganizowanego przez Uniwersytet im. Adama Mickiewicza w Poznaniu przy wsparciu SARP Oddział Poznań było opracowanie koncepcji przebudowy lub budowy nowego Domu Studenckiego „Jowita” zlokalizowanego przy ul. Zwierzynieckiej 7 w dzielnicy Jeżyce w Poznaniu, wraz z zagodpodarowaniem terenu.
DS „Jowita” został w 2023 roku zamknięty ze względu na poważne zastrzeżenia dotyczące jego stanu technicznego, w tym kwestii związanych z bezpieczeństwem pożarowym. Ekspertyzy budowlane i pożarowe wskazywały na konieczność przeprowadzenia gruntownego remontu, aby dostosować budynek do obowiązujących standardów bezpieczeństwa. Organizator zwrócił szczególną uwagę na wymagania z zakresu Prawa Budowlanego i Warunków Technicznych - które miały spełnić prace konkursowe - w tym dotyczące: bezpieczeństwa pożarowego, konsktrukcji i użytkowania oraz ochrony środowiska i oszczędności energii, a także odpowiednich warunków higienicznych i zdrowotnych. Należało zaprojektować budynek możliwie bezobsługowy, uwzględniając nie tylko rozwiązania dla pokoi studenckich, ale też lokalizacje: 

  • Centrum Aktywności Studenckiej i Doktoranckiej;
  • Stref Nauki, Pracy, Rekreacji;
  • Strefy administracyjnej;
  • Strefy techniczno-magazynowej;
  • Strefy komercyjnej. [AK]

Maksymalny planowany koszt realizacji inwestycji - 100 000 000 zł brutto
Maksymalny planowany koszt wynagrodzenia projektanta nie przekroczy kwoty stanowiącej 7% łącznego kosztu realizacji inwestycji brutto

Materiały zostały opublikowane dzięki uprzejmości i za zgodą Organizatora Konkursu.

 

Wyniki konkursu

Zaloguj się, aby mieć pełny dostęp do galerii.
Rejestracja jest darmowa i pomaga nam
udostępniać materiały bezpłatnie.

Zaloguj się, aby mieć pełny dostęp do galerii.
Rejestracja jest darmowa i pomaga nam
udostępniać materiały bezpłatnie.

Zaloguj się, aby mieć pełny dostęp do galerii.
Rejestracja jest darmowa i pomaga nam
udostępniać materiały bezpłatnie.

Zaloguj się, aby mieć pełny dostęp do galerii.
Rejestracja jest darmowa i pomaga nam
udostępniać materiały bezpłatnie.

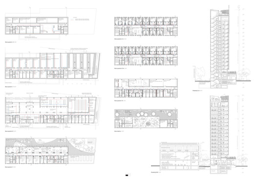
I nagroda 85 000 zł

NM architekci Tomasz Marciniewicz, Zuzanna Szpocińska-Marciniewicz, Jerzy Grochulski
nmarchitekci.pl

Autorzy: Tomasz Marcinkiewicz, Zuzanna Szpocińska – Marciniewicz, Jerzy Grochulski, Aleksandra Kreft, Konrad Matulaniec

Uzasadnienie wyboru pracy:
Nagrodę przyznano za właściwie dobrane proporcje nadbudowy, a efekcie całej bryły budynku; odważną propozycję ukształtowania miniaturowego parku w miejscu parkingu; rozwiązania proekologiczne i prośrodowiskowe; bardzo dobre rozwiązania funkcjonalne części mieszkalnej; dobre rozwiązania w zakresie ochrony p.poż. i ewakuacji; realność przyjętych rozwiązań projektowych w odniesieniu do budżetu inwestycji.

Zaloguj się, aby mieć pełny dostęp do galerii.
Rejestracja jest darmowa i pomaga nam
udostępniać materiały bezpłatnie.

Zaloguj się, aby mieć pełny dostęp do galerii.
Rejestracja jest darmowa i pomaga nam
udostępniać materiały bezpłatnie.

Zaloguj się, aby mieć pełny dostęp do galerii.
Rejestracja jest darmowa i pomaga nam
udostępniać materiały bezpłatnie.

Zaloguj się, aby mieć pełny dostęp do galerii.
Rejestracja jest darmowa i pomaga nam
udostępniać materiały bezpłatnie.

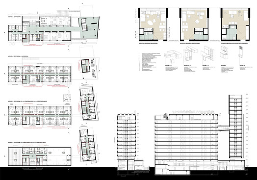
II nagroda 60 000 zł

Arch_it
archit.pl

Autorzy: Piotr Zybura, Paweł Olszak, Michał Grądowy, Szymon Ciupiński, Angelika Śliwińska, Kinga Zemła, Michał Bednarski, Marcin Gęzikiewicz

Uzasadnienie wyboru pracy:
Nagrodę przyznano za dobre rozwiązania funkcjonalne w części mieszkalnej; próbę wyeksponowania charakterystycznych elementów istniejącego budynku oraz odwagę w kształtowaniu przestrzeni zgodnie z pryncypiami konserwatorskimi; właściwe odczytanie ducha modernistycznego założenia urbanistyczno-architektonicznego oraz jego spójność przestrzenną; wątpliwości Sądu dotyczą skali zabudowy towarzyszącej zlokalizowanej w miejscu parkingu.

Zaloguj się, aby mieć pełny dostęp do galerii.
Rejestracja jest darmowa i pomaga nam
udostępniać materiały bezpłatnie.

Zaloguj się, aby mieć pełny dostęp do galerii.
Rejestracja jest darmowa i pomaga nam
udostępniać materiały bezpłatnie.

Zaloguj się, aby mieć pełny dostęp do galerii.
Rejestracja jest darmowa i pomaga nam
udostępniać materiały bezpłatnie.

Zaloguj się, aby mieć pełny dostęp do galerii.
Rejestracja jest darmowa i pomaga nam
udostępniać materiały bezpłatnie.

III nagroda 45 000 zł

GAB Piotr Grabowski Architekt, Atelier Tektura
studiogab.net, atelier-tektura.pl

Autorzy: Barbara Kozielewska, Piotr Grabowski, Katarzyna Osipowicz-Grabowska, Michał Kozielewski, Mateusz Kluczek, Łukasz Petelski, Anna Puchalska, Jerema Kozielewski, Katarzyna Grabara-Przybysz, Stanisław Ignaciuk Planktongroup, Paweł Sieradzon; makieta: SRDN Models Pracownia makiet

Uzaadnienie wyboru pracy:
Nagrodę przyznano za interesującą propozycję obniżenia stropu nad piwnicą i zrównania jego poziomu z przylegającym chodnikiem - zabieg ten pozwala na bardzo dobre połączenie budynku z miastem, ale jego realizacja wykracza poza możliwości finansowe Zamawiającego; dobre rozwiązania funkcjonalno- przestrzenne; wątpliwości Sądu wzbudziła proponowana forma nadbudowy budynku DS Jowita; wątpliwości Sądu wzbudził proponowany kształt klatek schodowych wynikający z przyjętej formy nadbudowy budynku DS Jowita.

Zaloguj się, aby mieć pełny dostęp do galerii.
Rejestracja jest darmowa i pomaga nam
udostępniać materiały bezpłatnie.

Zaloguj się, aby mieć pełny dostęp do galerii.
Rejestracja jest darmowa i pomaga nam
udostępniać materiały bezpłatnie.

Zaloguj się, aby mieć pełny dostęp do galerii.
Rejestracja jest darmowa i pomaga nam
udostępniać materiały bezpłatnie.

Zaloguj się, aby mieć pełny dostęp do galerii.
Rejestracja jest darmowa i pomaga nam
udostępniać materiały bezpłatnie.

Wyróżnienie równorzędne 30 000 zł

PL.architekci
plarchitekci.pl

Autorzy: Katarzyna Cynka-Bajon, Bartłomiej Bajon, Karol Kremski, Bartosz Stanek

Zaloguj się, aby mieć pełny dostęp do galerii.
Rejestracja jest darmowa i pomaga nam
udostępniać materiały bezpłatnie.

Zaloguj się, aby mieć pełny dostęp do galerii.
Rejestracja jest darmowa i pomaga nam
udostępniać materiały bezpłatnie.

Zaloguj się, aby mieć pełny dostęp do galerii.
Rejestracja jest darmowa i pomaga nam
udostępniać materiały bezpłatnie.

Zaloguj się, aby mieć pełny dostęp do galerii.
Rejestracja jest darmowa i pomaga nam
udostępniać materiały bezpłatnie.

Wyróżnienie równorzędne 30 000 zł

Wenzel+Wenzel
wenzel-wenzel.com

Autorzy: Jakub Marszalski, Mariia Lytvynenko

Zaloguj się, aby mieć pełny dostęp do galerii.
Rejestracja jest darmowa i pomaga nam
udostępniać materiały bezpłatnie.

Zaloguj się, aby mieć pełny dostęp do galerii.
Rejestracja jest darmowa i pomaga nam
udostępniać materiały bezpłatnie.

Zaloguj się, aby mieć pełny dostęp do galerii.
Rejestracja jest darmowa i pomaga nam
udostępniać materiały bezpłatnie.

Zaloguj się, aby mieć pełny dostęp do galerii.
Rejestracja jest darmowa i pomaga nam
udostępniać materiały bezpłatnie.

Wyróżnienie równorzędne 30 000 zł

Pracownia Autorska i Biuro Prawne H. J. Buszkiewicz

Autorzy: Filip Buszkiewicz, Krzysztof Sikorski, Jan Buszkiewicz, Zuzanna Melewska, Jakub Taszarek

platforma ARCHIKONKURS istnieje dzięki wsparciu

Forbo
Stowarzyszenie Producentów Cementu
Strona internetowa Archikonkurs wykorzystuje pliki „cookies”. Użytkownik może zmienić warunki korzystania z plików "cookies" poprzez zmianę ustawień przeglądarki. Szczegółowe informacje na temat przechowywania i wykorzystania plików "cookies" znajdują się w Polityce Prywatności