_nr 2025-018

Wyniki konkursu na koncepcję budynku Archiwum Państwowego w Łodzi

Informacje

Lokalizacja: Łódź
Województwo: Łódzkie
Organizator: Archiwum Państwowe w Łodzi
Tryb: Zamówienie z wolnej ręki
Rodzaj: Realizacyjny
Typ: Jednoetapowy
Data ogłoszenia konkursu: 26.05.2025
Data rejestracji uczestników: 16.06.2025
Data składania prac: 30.09.2025
Data ogłoszenia wyników: 28.10.2025

Sędziowie

_Przewodniczący:
  • Wojciech Gęsiak
_Sędzia referent:
  • Danuta Lipińska
_Członkowie sądu:
  • Piotr Biliński
  • Roman Wieszczek
  • Wojciech Kowaluk
  • Joanna Wojtaszczyk
  • Anna Szefier
  • Adriana Bryk
_Sekretarz konkursu:
  • Paulina Chraniuk

Opis konkursu

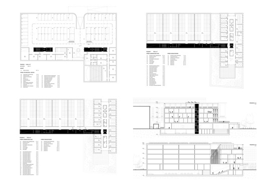
Przedmiotem konkursu zorganizowanego przez Archiwum Państwowe w Łodzi było opracowanie koncepcji nowej siedziby Archiwum zlokaliowanej na działce o powierzchni 4 630 m2 przy ul. Plac generała Henryka Dąbrowskiego w Łodzi. Należało zaprojektować budynek o pięciu kondygnacjach nadziemnych i jednej podziemnej, o łącznej powierzchni użytkowej nie mniejszej niż 9 200 m2, który będzie łączył funcje:

  • magazynową z zapleczem,
  • udostępniania zasobu,
  • biurową,
  • ekspozycyjno-edukacyjną wraz niezbędnym zapleczem.

Organizator oczekiwał rozwiązań łączących najwyższą jakość architektoniczną i użytkową z mitygacją i adaptacją do zmian klimatu oraz zasadami gospodarki o obiegu zamkniętym. Zaprojektowany obiekt miał być efektywny pod względem ekonomicznym, technicznym, środowiskowym i społecznym. [AK]

Maksymalny planowany koszt realizacji inwestycji - 207 000 000 zł netto

Do konkursu zgłosiło się 10 Uczestników, z których 8 zostało dopuszczonych do udziału w dalszej procedurze. 

Materiały zostały opublikowane dzięki uprzejmości i za zgodą Uczestników Konkursu. 

 

 

Wyniki konkursu

Zaloguj się, aby mieć pełny dostęp do galerii.
Rejestracja jest darmowa i pomaga nam
udostępniać materiały bezpłatnie.

Zaloguj się, aby mieć pełny dostęp do galerii.
Rejestracja jest darmowa i pomaga nam
udostępniać materiały bezpłatnie.

Zaloguj się, aby mieć pełny dostęp do galerii.
Rejestracja jest darmowa i pomaga nam
udostępniać materiały bezpłatnie.

Zaloguj się, aby mieć pełny dostęp do galerii.
Rejestracja jest darmowa i pomaga nam
udostępniać materiały bezpłatnie.

Zaloguj się, aby mieć pełny dostęp do galerii.
Rejestracja jest darmowa i pomaga nam
udostępniać materiały bezpłatnie.

I nagroda 110 000 zł

Heinle, Wischer und Partner Architekci
heinlewischerpartner.pl

Uzasadnienie wyboru pracy:
Przedstawione w koncepcji rozwiązania architektoniczne, funkcjonalne, konstrukcyjno-budowlane i użytkowe gwarantują wysoką jakość budynku oraz mają wiarygodny potencjał dla dalszych prac projektowych i realizacyjnych, szczególnie w zakresie potrzeb Archiwum związanych z dopasowaniem przestrzeni biurowych i magazynowych w kontekście realizacji bieżących zadań. Zaprojektowana forma obiektu i wystrój architektoniczny oraz zagospodarowanie terenu wpisują się w sposób właściwy i pożądany w tkankę urbanistyczną reprezentacyjnej przestrzeni ważnego placu miejskiego w Łodzi.

Zaloguj się, aby mieć pełny dostęp do galerii.
Rejestracja jest darmowa i pomaga nam
udostępniać materiały bezpłatnie.

Zaloguj się, aby mieć pełny dostęp do galerii.
Rejestracja jest darmowa i pomaga nam
udostępniać materiały bezpłatnie.

Zaloguj się, aby mieć pełny dostęp do galerii.
Rejestracja jest darmowa i pomaga nam
udostępniać materiały bezpłatnie.

Zaloguj się, aby mieć pełny dostęp do galerii.
Rejestracja jest darmowa i pomaga nam
udostępniać materiały bezpłatnie.

Zaloguj się, aby mieć pełny dostęp do galerii.
Rejestracja jest darmowa i pomaga nam
udostępniać materiały bezpłatnie.

II nagroda 30 000 zł

22ARCHITEKCI
22architekci.pl

Zaloguj się, aby mieć pełny dostęp do galerii.
Rejestracja jest darmowa i pomaga nam
udostępniać materiały bezpłatnie.

Zaloguj się, aby mieć pełny dostęp do galerii.
Rejestracja jest darmowa i pomaga nam
udostępniać materiały bezpłatnie.

Zaloguj się, aby mieć pełny dostęp do galerii.
Rejestracja jest darmowa i pomaga nam
udostępniać materiały bezpłatnie.

Zaloguj się, aby mieć pełny dostęp do galerii.
Rejestracja jest darmowa i pomaga nam
udostępniać materiały bezpłatnie.

Wyróżnienie równorzędne 10 000 zł

Tektonika Architekci
tektonika.eu

Autorzy: Sławomir Florkiewicz, Aleksander Kwaśniak-Wiland, Zuzanna Biernacka, Gabriela Szot-Płudowska

Zaloguj się, aby mieć pełny dostęp do galerii.
Rejestracja jest darmowa i pomaga nam
udostępniać materiały bezpłatnie.

Zaloguj się, aby mieć pełny dostęp do galerii.
Rejestracja jest darmowa i pomaga nam
udostępniać materiały bezpłatnie.

Zaloguj się, aby mieć pełny dostęp do galerii.
Rejestracja jest darmowa i pomaga nam
udostępniać materiały bezpłatnie.

Zaloguj się, aby mieć pełny dostęp do galerii.
Rejestracja jest darmowa i pomaga nam
udostępniać materiały bezpłatnie.

Wyróżnienie równorzędne 10 000 zł

Bogumił Kidziak Architekt
kidziak.pl

platforma ARCHIKONKURS istnieje dzięki wsparciu

Forbo
Stowarzyszenie Producentów Cementu
Strona internetowa Archikonkurs wykorzystuje pliki „cookies”. Użytkownik może zmienić warunki korzystania z plików "cookies" poprzez zmianę ustawień przeglądarki. Szczegółowe informacje na temat przechowywania i wykorzystania plików "cookies" znajdują się w Polityce Prywatności